AUCTION BROUGHT FORWARD
On site, Tuesday 1st April 4.30pm
Download reports and sale particulars at www.bit.ly/5FORESTERS
Request a private viewing at www.bit.ly/CGVIEW
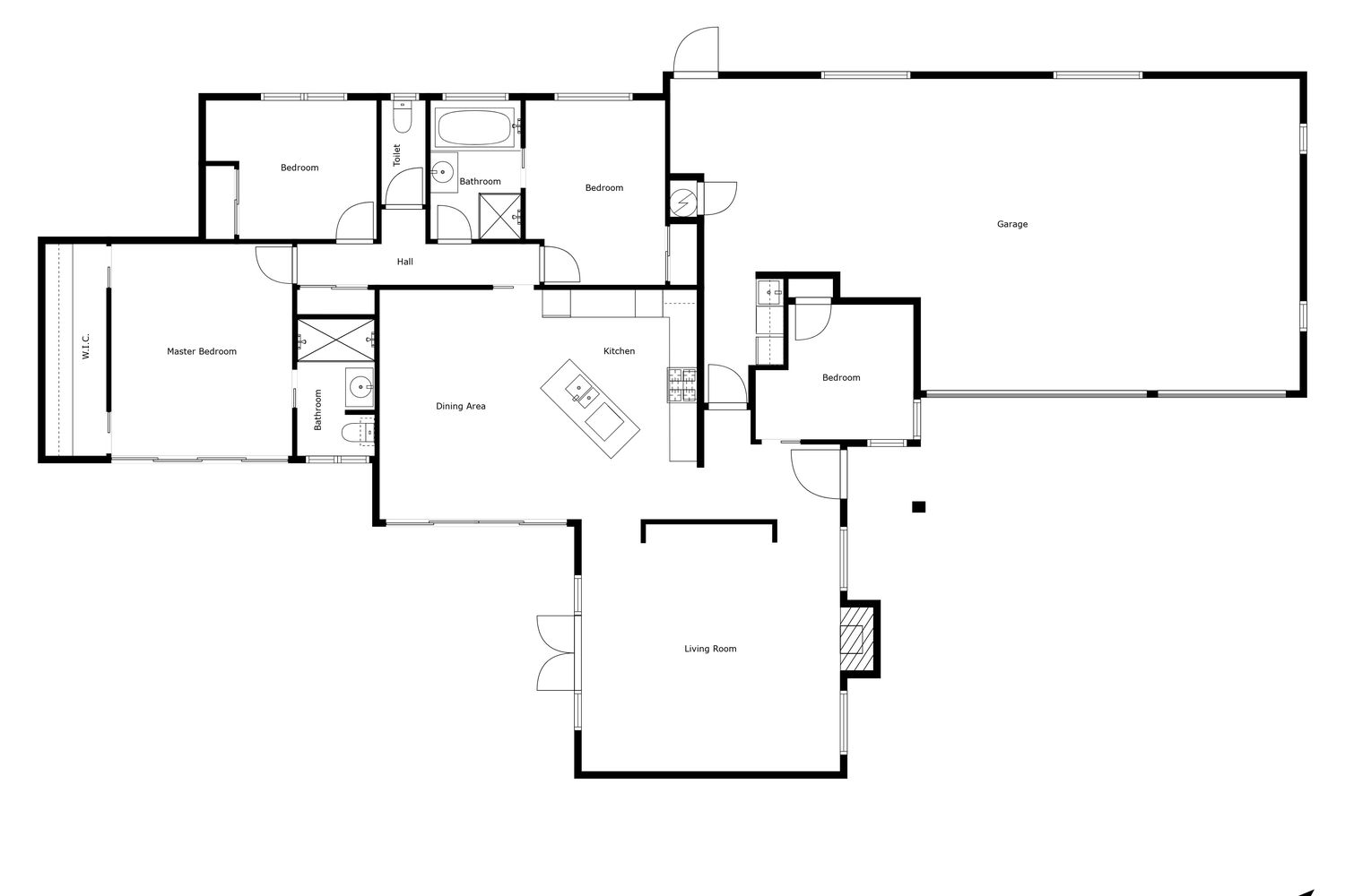
If your family needs more space—inside and out—this Parklands home delivers. Set behind an automated gate, it’s designed for privacy, security, and effortless living. The owners have already moved into their new home, and they’re fully committed to selling—so don’t miss your chance.
With triple car garaging and loads of secure off-street parking, there’s room for the family cars, the boat, and the kids’ bikes. Inside, two interconnecting living areas mean everyone gets their own space while staying connected. Whether it’s movie night in the lounge, homework at the dining table, or a quiet moment by the gas fire, this home adapts to the way you live.
The four bedrooms all have built-in wardrobes—so no more fighting over storage. A fresh, neutral interior with new flooring makes it easy to move in and make it your own. Comfort is covered year-round with three heat pumps, full double glazing, and a gas fire for those chilly mornings.
Step outside and discover your own private retreat. The established outdoor living is ready for BBQs with friends, outdoor dining, and space for the kids to play.
Surrounded by other modern homes in a family-friendly enclave, this location is all about lifestyle. Bottle Lake Forest and Waimairi Beach are just minutes away, offering weekend adventures on foot, bike, or paddleboard. Plus, you’re in zone for Parkview Pārua, Avonside Girls’, and Shirley Boys’ High Schools.
The owners have moved on—this home is ready for its next family. Don’t wait—get in touch to make it yours.






































