Not all townhouses are created equal.
This one’s freehold.
Has a full double garage.
And it’s been properly prepped for sale.
No body corp. No street parking dramas.
Just simple, secure, low-maintenance living.
– Freehold title
– Internal access double garage
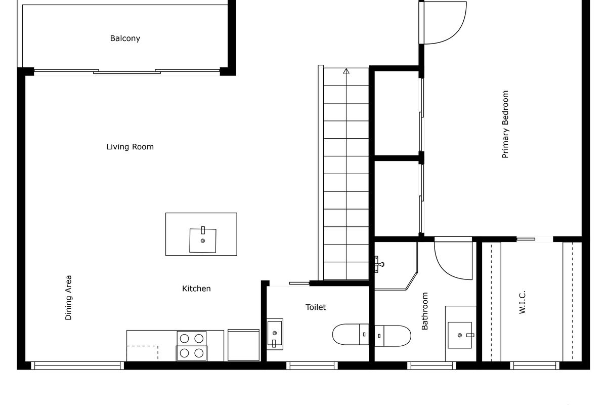
– 150sqm floor area
– Three beds, two baths + guest toilet
– Double glazing
– Wall and ceiling insulation
– Heat pump
– Fresh carpet
– Full interior repaint
– Healthy Homes compliant
– Rental appraisal: $625–$675 per week
It’s been well maintained by long-term owners who’ve taken pride in keeping things up to scratch.
First-home buyers: This is the kind of place you settle into and stay.
Investors: Healthy Homes compliant with a rental appraisal of $625–$675 per week.
Professional couples: Zero fuss, close to the city, and easy to lock up and leave.
Edgeware Village is just up the road.
Bailies Bar, your new local.
Central city? A few minutes away.
Flick us a message for more info or to tee up a viewing.

































































































