Someone put in the hours. You get the keys.
The interior is modern and clean — new kitchen opening to the dining area, a separate lounge, updated bathroom, and an upgraded laundry with additional cabinetry. New floor coverings throughout, new wiring, insulated underfloor and ceiling, extensive double glazing and a heat pump for year-round comfort.
The result is a home that feels fresh from the moment you walk in.
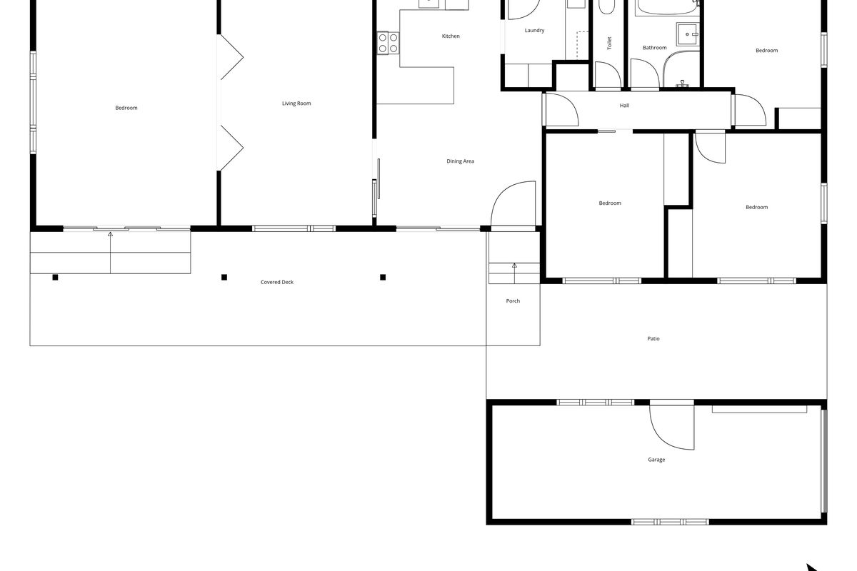
The floor plan is where this property earns its headline. The separate lounge can stay exactly that — or close it off and gain a fourth bedroom. A young family might want the extra living space now and the extra bedroom later. An investor sees a home that works for a wider pool of tenants. Either way, the layout doesn't box you in.
Outside, the established 607m² section has real room to breathe. Space for kids to run, a dog to patrol the perimeter, and enough lawn to feel like a proper backyard without consuming your weekends.
– New kitchen opening to dining, separate lounge
– New bathroom and upgraded laundry with additional cabinetry
– New floor coverings throughout
– New wiring, ceiling and underfloor insulation
– Heat pump
– Extensive double glazing
– Flexible layout: 3 bed, 2 living or 4 bed, 1 living
– Freehold, 607m² section
Tucked into a quiet Sockburn street with quick access to key arterial routes, the University, and the Airport — well-located without making a fuss about it. Zoned for Riccarton and Avonhead primary schools and Riccarton High, with St Thomas's and Villa Maria College within biking distance.
Viewing will impress — get in touch today to schedule a viewing.





























