Your Admission to Prestons Park Auction

9 Guyon Street, Marshland
Auction Sunday 24th May
House
  • 3 Beds
  • 2 Baths
  • 2 Car Spaces
  • 493 Square metres

Description

Auction on site
Sunday 24th May at 3.30 pm (unless sold prior)

Saturday morning. Coffee in hand, Weekend Press open, sun already warming the patio. This is what you were looking for.

Whether you’re a young family planting roots, a professional couple upgrading to something you’ll actually want to come home to, or a downsizer who refuses to sacrifice space or a double garage — this one was built for you.

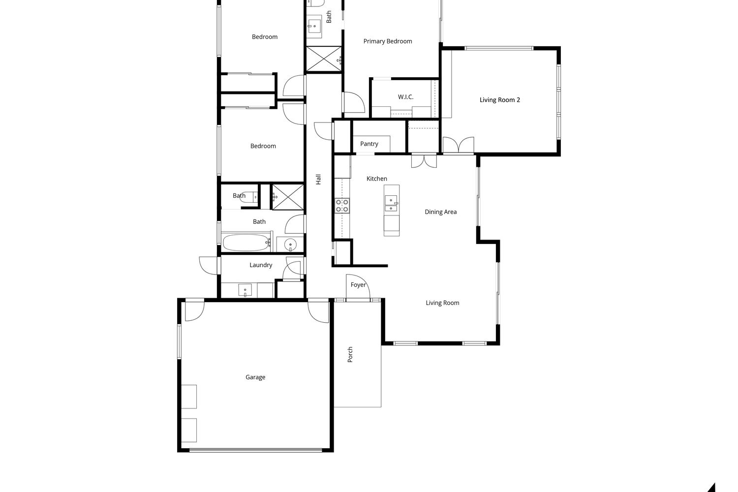
The covered patio faces north-northwest, pulling in sun for the better part of the day — the kind of aspect that earns its keep in a Canterbury winter. Walk-in pantry, induction cooktop, dishwasher — everything where it should be, nothing you need to add. The second living area pulls its weight: a room for the kids, a proper home office, a quiet retreat. Your call.

3 bedrooms, 2 bathrooms including ensuite
2 living areas
Double internal access garage
Established section, covered patio
Balance of the 10-Year Halo Residential Guarantee available to transfer

The owners love this neighbourhood so much they’ve purchased just around the corner. That says more than any listing description can.

Prestons Park is the kind of place where you bump into your neighbours walking the dogs or watching the kids tear up the footpath on their trikes. Local shops at the corner, Marshland Primary in zone, Bottle Lake Forest and Travis Wetlands on your doorstep, and the beach a short drive when the mood strikes.

Come and walk through it. You’ll understand quickly.

Floorplans

Floor Plan 1

Location